公司简介 公司新闻 综合资讯 产品展示 产品目录 客户反馈 联系我们 电子邮局
  主要产品为静态混合器、动态混合设备、传热反应设备、过滤设备、消声设备、阻火设备等

旋转加料器
星形给料机
叶轮给料机
卸料阀
关风机
闭风阀
卸灰阀
星形阀
螺旋输送机
混合器
塔式反应器
管式反应器
环管反应器
高效换热器
萃取塔
管道过滤器
自清洗过滤器
空气过滤器
灭菌过滤器
滤件系列
精细过滤器
粉体混合设备
液体搅拌设备
消声器
特种小型设备
排水器
纸浆漂白专用设备
除污器(滤水器)
喷射器
纤维除雾器
自动进料搅拌釜

 
喷射器
PSQ-型蒸汽喷射真空泵
PSG-气固喷射器
PSB电线电缆燃烧仪检测喷射器
PSC活性炭喷射器
PSS水泵房喷射节能器
PSY生物柴油喷射器
PST脱硫喷射器
PSD-地坑喷射器
PSJ喷射加热器
罐用喷射器
PSK开工抽引器
PSZ罐底焊缝真空检漏盒抽空器
液固喷射器
抽空器
篮式过滤器

(1)篮式法兰连接直通平底过滤器(PFLI-F型)  (PN≤5.OMPa DNl5~300)
(2)篮式法兰连接重叠型直通平底过滤器(PFLMI—F型)  (PN≤5.OMPa DNl5~300)
PFLI-F、PFLM-F
           
DN
L
H
H1
DO
N
15
180
260
160
Ф76
Rc3/4
20
180
260
160

Ф76

25
180
260
160
Ф76
32
200
270
160
Ф76
40
260
300
170
Ф108
50
260
300
170
Ф108
65
330
360
210
Ф133
DN
L
H
H1
DO
N
80
340
400
250
Ф159
Rc3/4
100
400
470
300
Ф219
125
480
550
360
Ф273
150
500
630
420
Ф273
200
560
780
530
Ф325
250
660
930
640
Ф426
M20×1.5
300
750
1200
840
Ф478

(3)篮式带夹套法兰连接直通平底式过滤器(PFLJI-F型)(PN≤5.OMPa DNl5—200) PFLJI—F型
DN
L
H
H1
蒸汽压力
夹套
N
DO
进口a
进口b
15
215
350
180
≤0.6MPa
Ф108
G3/4
G3/4
Rc3/4
20
215
350
180
Ф108
25
215
350
180
Ф108
32
235
360
180
Ф108
40
300
430
210
Ф159
50
300
430
210
Ф159
65
450
490
250
Ф159
80
460
530
290
Ф273
DN20
DN20
100
500
600
345
Ф325
125
580
700
410
Ф377
DN25
DN25
150
600
780
470
Ф377
200
660
930
580
Ф426

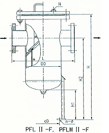
(4)篮式法兰连接直通封头式过滤器(PFL II—F型)  (PN≤5.OMPa DN200—500)
(5)篮式法兰连接直通封头式过滤器(PFLM 11—F型)  (PN≤5.OMPa DN200~500)
 PFLII-F,PFLMH-F型
DN
L
H
H2
H1
Do
do
n-Ф
N
200
560
1090
840
300
Ф325
Ф290
3-Ф20
Rc3/4
250
660
1250
940
300
Ф426
Ф350
3-Ф20
300
750
1500
1160
300
Ф478
Ф400
3-Ф20
Rc1
350
800
1680
1310
300
Ф500
Ф420
3-Ф20
400
840
1850
1450
300
Ф550
Ф450
3-Ф20
450
960
2050
1610
300
Ф600
Ф520
3-Ф24
500
1060
2210
1740
300
Ф700
Ф620
3-Ф24

 (6)篮式法兰连接高低接管平底过滤器(PFLIII—F型)  (PN≤5.OMPa DN25—300)
 (7)篮式法兰连接重叠高低接管平底过滤器(PFLMIII—F型)  (PN≤5.OMPa DN25~300)
  PFL III—F型、PFL MIII—F型
DN
L
H
H1
H2
Do
N
25
180
280
110
180
Ф76
Rc3/4
32
200
285
110
180
Ф76
40
260
340
120
220
Ф108
50
260
340
120
220
Ф108
65
330
400
160
270
Ф133
80
340
460
480
320
Ф159
DN
L
H
H1
H2
Do
N
100
400
550
200
390
Ф219
Rc3/4
125
480
630
260
450
Ф273
150
500
720
310
530
Ф273
200
560
900
390
670
Ф273
250
660
1070
480
800
Ф426
M20×1.5
300
750
1360
640
1040
Ф478

南通沃尔驰石化工程有限公司 地址:启东市汇龙镇中央河中路691号 邮编:226200 http://www.jsxadq.com E-mail:13862978163@126.com
电话:0513-83325673 传真:0513-83119878 手机: 13862978163
星形给料机|旋转阀|叶轮给料机|卸料阀|关风机|闭风阀|卸灰阀|星形阀